Зростання як необхідна умова розвитку – кейс ТРЦ Подоляни
В ході RAU Summit 2024 директорка з розвитку ТРЦ Подоляни Тетяна Чубак презентувала учасникам другу чергу ТРЦ Подоляни (Тернопіль), яка відкриється восени 2025 року.
На межі можливостей
Коли об’єкт торгівлі вичерпує свій потенціал в існуючих межах, єдиною можливістю для подальшого розвитку стає розширення, будівництво нових площ. Відкритий ще в грудні 2007 року ТРЦ Подоляни працює в Тернополі вже 17 років й наразі має загальну площу 50 000 кв. м, з яких доступно для оренди 38 000 кв. м. Тут одночасно може паркуватися 1000 автомобілів, а загалом за рік його відвідують більше 6 млн людей.

Серед майже двох сотень орендарів в ТРЦ представлені понад 1000 національних і міжнародних брендів. Зокрема, торгова галерея представлена магазином Сільпо в ексклюзивному форматі на 8000 кв. м, а також торговими точками польського ритейлера LPP під брендами Reserved, Cropp, Sinsay та House (з’явився в 2024 році). Також тут широко представлені мережі спорттоварів – бренди Intersport, Sport City, New Balance тощо, а також відомі представники сегменту fashion, такі як LC Waikiki, Colin’s та багато інших.

За 17 років команда ТРЦ подолала шлях від реконструкції закинутого заводу до регіонального торгово-розважального центру, головного ТРЦ Тернопільської області, який відвідують жителі навколишніх областей.
Цільова аудиторія

Основна цільова аудиторія ТРЦ – жителі Тернополя та області. Приблизно 40% відвідувачів становлять мешканці області, а ще близько 20% – це приїжджі з інших міст, які знаходяться в Тернополі у справах чи в туристичних цілях. Приблизно 2% приїздять зі Львівської області.
Майже 60% відвідувачів дістаються до ТРЦ на власному авто чи громадському транспорті, що свідчить про гарну локацію. Десь 40% трафіку складають люди, які приходять до ТРЦ щонайменше двічі на тиждень або частіше. Поряд знаходиться великий житловий комплекс Аляска та будується великий мікрорайон Північний. Тому більше 8% людей приходять в ТРЦ пішки.
Фактично ТРЦ став не просто місцем торгівлі, а соціально-культурним осередком. Наприклад, тут проходить чимало цікавих заходів – концерти та фестивалі навіть всеукраїнського рівня, як от конкурс Міні-міс Україна.

Це й мистецькі заходи, конференції, тощо. Також тут працює благодійний фонд «Подоляни», який разом з іншими благодійниками провів більше 500 акцій на підтримку ЗСУ та інших сил оборони.
Постійний розвиток і нові відкриття
Весь час свого існування ТРЦ Подоляни розвивався, вдосконалювався, щоб відповідати новим потребам і запитам споживачів та вимогам часу. Змінювався tenant-mix, покращувався сервіс та забезпечувалася енергонезалежність. По мірі розвитку ТРЦ в ньому з’являлися нові бренди, деякі з них потім збільшили свою присутність удвічі-втричі.

Особливою гордістю команди є забезпечення повної безбар’єрності – цьогоріч тут встановили спеціальний підйомник для маломобільних груп населення. Також в ТРЦ Подоляни працює єдиний в області концертний хол, який без перешкод можуть відвідати всі без винятку групи людей. Теж саме стосується трьох санвузлів, спеціально обладнаних для людей з інвалідністю.
За 2022-24 роки відкрилося чимало нових магазинів. Перш за все було посилено спортивну складову за рахунок таких брендів як Sport City, New Balance, Megasport. Так само вперше був представлений сегмент товарів для дому магазином Jysk в найновішому форматі 4.0 та магазинами MBM my home і Family. Варто також відзначити магазин для сімейного шопінгу Yuki, який дуже успішно працює.

Але в певний момент розвиток ТРЦ досяг своєї межі. При постійній наявності нових запитів ТРЦ бракує вільних площ, так само як бракує місць на парковці, а наявне укриття вже не відповідає сучасним вимогам. Відповіддю на ці обмеження стало будівництво другої черги ТРЦ.
Будівництво під час війни – виклики, ризики, можливості
Але будувати під час повномасштабної війни, навіть у глибокому тилу, – досить складне завдання, враховуючи, що ракети та дрони дістають всюди по Україні. Дається взнаки порушення логістики та брак трудових ресурсів, коли потрібного фахівця треба дуже довго шукати. Плюс на додачу відключення електроенергії та загальна не прогнозованість ситуації.

Наприклад, через влучання ракети у склад постачальника в Львівській області згоріла опалубка, яку мали би поставити на будівництво другої черги ТРЦ.

Так само замість графіку вимкнень світла будівельний майданчик отримав графік включень на дві-три години. Й тому довелося ставити окремий генератор, який забезпечує енергією роботу висотного крану та іншої техніки. Щоб робота не припинялася ні на день та будівництво могло вкластися у встановлені строки.

Для безперебійного постачання високоякісного бетону збудували ультрасучасний бетонний завод потужністю 100 кубометрів бетону на годину. Це дозволяє працювати цілодобово, заливаючи, наприклад, плиту перекриття на 600 кубометрів. Виробництвом займається спеціально створена компанія Ф-Бетон.
Аби передбачити та подолати ці виклики в реалізації другої черги Podolyany Mall була використана тактика, що пройшла випробування часом (фінансова криза, ковідні часи). Тобто швидко приймати рішення, бути гнучким та диверсифікувати всі ризики.
Заплановане відкриття
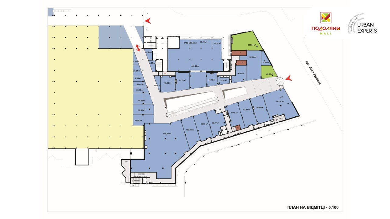
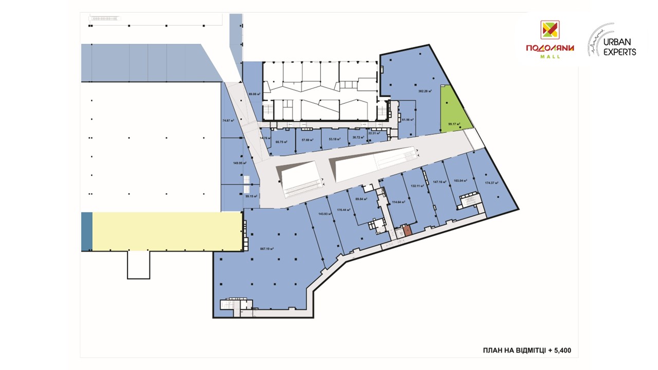
Будівництво другої черги триває постійно і вже йде по графіку, аби до осені 2025 року запустити в роботу додатково 21 000 кв. м. Нова споруда буде об’єднана з існуючим ТРЦ й разом загальна площа об’єкту становитиме 71 000 кв. м.

Починалося спорудження на відмітці -5,1 м й наразі роботи йдуть уже на відмітці + 5,4 м (висота одного поверху).

Мінус перший поверх з’єднаний з парковкою та матиме сучасне укриття, яке відповідає усім нормативам безпеки. Перший поверх з’єднаний з діючою частиною ТРЦ.

На другому – розмістяться торгові галереї. На третьому поверсі буде дитячий розважальний центр площею 3200 кв. м та сучасний фуд-корт з виходом на тераси. Четвертий поверх стане продовженням сфери дитинства та розваг.



Візуалізації дизайну показує як проєктувальники намагалися зробити приміщення максимально просторими та світлими.





А поки будується друга черга, в ТРЦ Подоляни вже почали проєктування третьої черги.
Read also
Перший у Буковелі: Як виглядає супермаркет Сільпо у стилі "Тіней забутих предків" (+фотоогляд)
